售前电话:199 3816 2940    手机/微信同号:199 3816 2940    服务热线:199 3816 2940   
视频监控系统安装
成都农商银行簇桥机投支行道闸系统安装
来源: 慧翼科技 发布日期: 2020.05.19 浏览数:

项目名称:成都农商银行簇桥机投支行道闸系统安装

项目地点:四川省成都武侯区福锦路二段222

项目背景:成都农商银行簇桥支行一直践行“至真至诚,用心服务”的服务文化理念,通过坚持推行标准化服务,以客户为中心,聚焦客户“痛点”,想客户所想,解客户所难,为客户提供专业高效、贴心周到的服务,与客户建立真正的情感纽带。

银行道闸系统安装

解决方案

道闸系统能够有效为车流量进行控制,也保证了银行的安全,使用户体验更好,银行管理更加方便。

道闸系统我们根据客户贯彻合理、先进、可靠、灵活、可扩展和实用经济的宗旨,采取开放式体系结构,为客户创造一个方便、快捷的使用场景。

停车场道闸:道闸系统管理以车辆图像对比、证件抓拍管理为核心的多媒体综合车辆收费管理系统,对于小区/单位等固定车辆管理偏多的用户所涉及的一款产品,可不停车读卡并高速的视频图像存储对比技术相结合,通过计算机图像处理,对车辆进出停车场的收费、安保等进行全面而系统的管理。

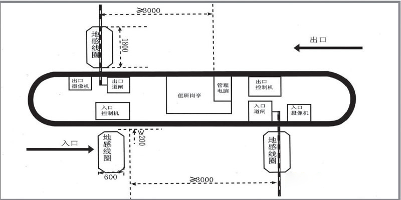
银行道闸系统拓扑图

用户评价

道闸系统对于我们银行来说还是非常重要的,因为车辆管理存在一些难点,就找到慧翼科技采购了道闸系统,安装好之后还是很不错的,道闸系统能有效解决停车进出场的问题,在管理上就方便多了,这是和慧翼科技非常愉快的一次合作。

银行道闸系统安装

慧翼科技:始于2009年,是专注打造视频监控系统,视频监控,安防监控安装,视频安防监控系统,视频监控工程为一体的视频监控解决方案服务商。网址:www.huiyikj.com,电话: 19938162940

咨询热线

199 3816 2940